瀛海19城143平房戶型分析和效果圖報價
-
日期:2018-05-02
-
來源:本站
-
點擊:826
瀛海19城143平房戶型分析和效果圖報價
樓盤簡介:
瀛海19城小區位于交通便捷、周邊環境秀美,洛河近在遲只,附近配套齊全,實為宜居之上選。天恒裝飾作為洛陽15年老品牌企業,具有深厚的設計底蘊和獨特的企業文化,依靠良好的口碑成就了一級裝飾企業的大品牌,連續多年成為洛陽地區的裝飾企業排頭兵,是洛陽人民信賴的裝飾企業。針對該小區143的戶型,天恒裝飾設計團隊進行了全面的戶型分析及裝修效果展示。

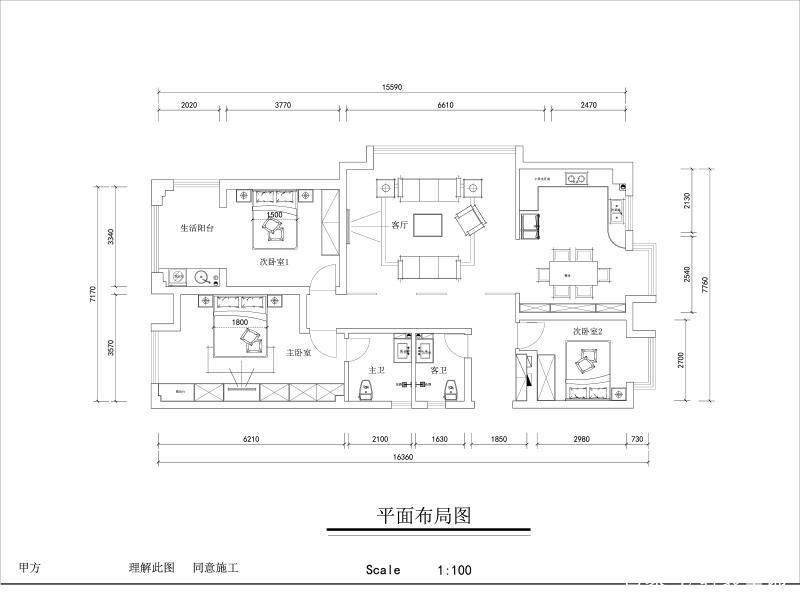
天恒裝飾原始平面圖
瀛海十九城143平方的戶型屬于長方形布局,擁有超大的客廳面積和難得的四個房間,空間的采光和通風較好。不過該戶型也存在一些缺陷和不足:
1、客廳隨大,但是周邊門洞口較多,而且屬于窄長型的結構,沙發墻電視墻存在缺陷;
二、廚房空間太小,不能滿足家庭生活的正常飲食要求。并且沒有獨立的餐廳區域;
三、臥室空間小,功能定位不夠清晰;
四、主臥室結構不夠規整,異型太多
五、主臥衛生間門開啟位置不合理,影響衛生間物品的擺放和使用;
六、入戶門和客廳窗戶相通,風水方面存在一定的問題;
七、客衛生間門開啟位置也不合理,影響該衛生間的物品擺放和使用;
八、唯一的陽臺位于次臥室,空間空間比例不夠協調;
九、儲物空間不足,影響后期居家使用。
以上的問題和不足,需要對戶型進行深入的空間優化和調整,否則會對裝修后的居家生活帶來諸多不便。具體的優化方案需要根據不同住戶的實際情況和需求來量身定制,以下改造方案僅作為設計思路方面的一種拓展和參考。

天恒裝飾布局方案一
經過初步優化后的布局方案作出了以下調整:
一、借用客廳過大部分,拓寬、加大廚房的使用面積,彌補廚房過小的問題;
二、可考慮將小臥室改造城餐廳,并且和開放式廚房融為一體,這樣的布局和143平方的面積更顯搭配,民以食為天,一日三餐不能將就;
三、客廳的沙發位擺放更多的突出會客廳的功能和要求,對位沙發和大茶幾居于客廳中心區域,能彰顯客廳的尊貴和穩重;
四、將主臥室的門進行方向改造,提升了主臥室的實際使用效率,并且可以讓主臥室擁有超大的衣柜,解決房間儲物功能不足的問題;
五、對主臥衛生間門進行位置優化,使得衛浴產品合理擺放,使用方便;
六、對客衛生間門也進行位置優化,使得衛浴產品合理擺放,使用方便;
七、入戶后的廊道遠端做通透性玄關,既規整了房屋的結構,又解決了風水方面的問題;
八、次臥室的陽臺放置洗衣搭檔組合,并做儲物吊柜,提高生活陽臺的利用效率。
九、其他個性化的需求,可根據實際情況進行深入優化。
樓盤簡介:
瀛海19城小區位于交通便捷、周邊環境秀美,洛河近在遲只,附近配套齊全,實為宜居之上選。天恒裝飾作為洛陽15年老品牌企業,具有深厚的設計底蘊和獨特的企業文化,依靠良好的口碑成就了一級裝飾企業的大品牌,連續多年成為洛陽地區的裝飾企業排頭兵,是洛陽人民信賴的裝飾企業。針對該小區143的戶型,天恒裝飾設計團隊進行了全面的戶型分析及裝修效果展示。

天恒裝飾原始平面圖
瀛海十九城143平方的戶型屬于長方形布局,擁有超大的客廳面積和難得的四個房間,空間的采光和通風較好。不過該戶型也存在一些缺陷和不足:
1、客廳隨大,但是周邊門洞口較多,而且屬于窄長型的結構,沙發墻電視墻存在缺陷;
二、廚房空間太小,不能滿足家庭生活的正常飲食要求。并且沒有獨立的餐廳區域;
三、臥室空間小,功能定位不夠清晰;
四、主臥室結構不夠規整,異型太多
五、主臥衛生間門開啟位置不合理,影響衛生間物品的擺放和使用;
六、入戶門和客廳窗戶相通,風水方面存在一定的問題;
七、客衛生間門開啟位置也不合理,影響該衛生間的物品擺放和使用;
八、唯一的陽臺位于次臥室,空間空間比例不夠協調;
九、儲物空間不足,影響后期居家使用。
以上的問題和不足,需要對戶型進行深入的空間優化和調整,否則會對裝修后的居家生活帶來諸多不便。具體的優化方案需要根據不同住戶的實際情況和需求來量身定制,以下改造方案僅作為設計思路方面的一種拓展和參考。

天恒裝飾布局方案一
經過初步優化后的布局方案作出了以下調整:
一、借用客廳過大部分,拓寬、加大廚房的使用面積,彌補廚房過小的問題;
二、可考慮將小臥室改造城餐廳,并且和開放式廚房融為一體,這樣的布局和143平方的面積更顯搭配,民以食為天,一日三餐不能將就;
三、客廳的沙發位擺放更多的突出會客廳的功能和要求,對位沙發和大茶幾居于客廳中心區域,能彰顯客廳的尊貴和穩重;
四、將主臥室的門進行方向改造,提升了主臥室的實際使用效率,并且可以讓主臥室擁有超大的衣柜,解決房間儲物功能不足的問題;
五、對主臥衛生間門進行位置優化,使得衛浴產品合理擺放,使用方便;
六、對客衛生間門也進行位置優化,使得衛浴產品合理擺放,使用方便;
七、入戶后的廊道遠端做通透性玄關,既規整了房屋的結構,又解決了風水方面的問題;
八、次臥室的陽臺放置洗衣搭檔組合,并做儲物吊柜,提高生活陽臺的利用效率。
九、其他個性化的需求,可根據實際情況進行深入優化。
優化布局結構是家裝設計的關鍵環節,好的布局方案能夠讓房屋的缺陷得到完美彌補,同時也是對設計師能力的考驗,天恒裝飾的團隊設計可以讓設計盡善盡美。從戶型結構來看,該戶型較為適合的裝修風格為簡歐、簡美、地中海、現代、田園、北歐、混搭。裝修造價根據裝修要求的不同,大致在9萬到20萬之間,以下是一些參考案例




文本標簽:
裝修設計


QQ咨詢
在線咨詢

