中電銀河灣170平方戶型分析及效果圖
-
日期:2018-06-24
-
來源:本站
-
點擊:2014
樓盤簡介:
中電銀河灣項目是集生態、科技、創新三位一體的純低密度高社區,跟銀河灣項目是洛陽HP人オ產業區的一部分,用地面積約18萬平方,總建筑面積的30萬平方,產品涵括花園洋房、聯非別墅、雙拼別墅.獨棟別墅,建成后將容納精英約1100戶。作為引領溶陽高品質生活的標桿社區,項目不管從產品設計,還是居住環境,還是科技配套,均不同于市場上傳統的別墅項目。
項目不僅有創新的規劃設計,還為業主打造了一個非常好的生志環境,本項目容積本僅為1.1,建筑密度僅有27%,綠化達40%以上,景觀單位是重慶九禾機
構,與國內一線地產商龍湖,中海等部建立了長期戰略合作,在汲取豐富經驗的基礎上,結合項目自身特點,打造出“一軸、兩帶、多點”的觀布局和五重立體顯觀效果,中軸景觀以軸線式水景空間為主,從主入口向內形成一條150米長的迎賓景觀主軸線,通過軸線對稱、嚴謹大氣的布局,完美的融入林陰樹陣、人行步道.竹林夾道等展現出家園林的尊貴感,也讓您回家帶有儀式,小區以商北向的景觀中軸和東西向的社區內部主干為分界線,柯整個社區分為薔薇花園.香頌花園、蔚藍花園.緹香花園等四大花園,分別由南北兩條各具特色的帶狀綠化景觀通廓點綴其中,通過疏林草地、庭院幽路、小品雕塑,水瀑噴泉等多個不同點,不同特色的主題景觀為小區業主來不同感官體驗,
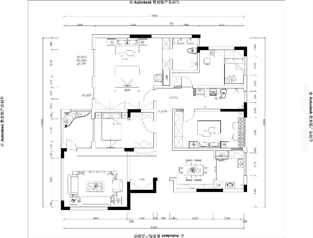
近日天恒裝飾設計研發團隊針對該接盤170平方的戶型進行了戶型分析及研發,
從戶型結構方面分析,該戶型總體結構較為合理,但是也存在幾個方面的問題:ー是露臺門從客廳電視墻進出,對喜廳的整體完整性造成一定影期;二是廚房和陽臺相通,不但利用率低,而目對廚房的安全操作帶來較大隱患。三是主臥室衛生間門的開啟位置,造成主臥室儲物空間不足:四是右上方的臥室不夠方正:五是贈送的全屋中央空調和新風系統安裝不夠合理,后期需要進行較大幅度的改進。
在戶型優化方面:一.可以考慮對電視墻面的門洞進行隱形設計或者將露臺封閉后與臥室相通:二、廚房相連的陽臺進行拆改,使之與臥室相連:三,主臥室步入衣柜和橫向衣柜結合使用,提高主臥室的儲物功能。四、右上方的臥室進行功能化的家居配置,使房間的實用功能增強;五.優化改進中央空調和新風系統,使之更加合理好用。
該戶型在設計風格上,比適合歐式、現代、新中式.美式.混搭風格。具體的方案設計需要結合業主的實際使用要求和個人喜好而定,以下一些參考案例:






QQ咨詢
在線咨詢

