英和紫悅府300平方戶型分析及裝修效果圖報價
-
日期:2018-06-29
-
來源:本站
-
點擊:966
英和紫悅府300平方戶型分析及裝修效果圖報價
樓盤地址:洛陽市洛龍區 竣工時間:2017-08
英和紫悅府項目位于龍門大道與古城路交匯處東800米,交通便捷。屬于洛陽新區核心地塊,毗鄰豐沛城市資源,與3000畝隋唐城遺址植物園隔路相望,融匯城市繁華與優質生態。該項目總占地120畝,總建筑面積16萬平方,由30棟聯排/雙拼別墅、6棟花園洋房、3棟瞰景高層大平層構成。項目采用經典意大利建筑風格,特引進埃及西奈珍珠貝等進口石材鑲嵌打造,產品創新能力注入每個細節;遵循望族重視的居家儀式感,以水景、成樹、綠植打造五重立體園林景觀體系,戶戶推窗見景。秉承"以人為本,留鑒洛陽"的理念,力創低密度住區。 其300平方戶型屬于大平層結構,天恒裝飾設計研發中心近期對該戶型進行了詳細的戶型分析。

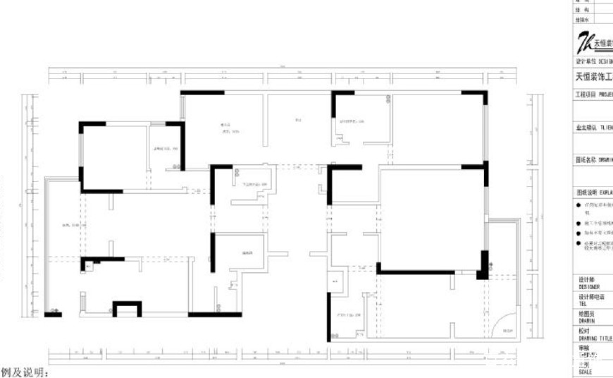
天恒裝飾原始平面圖
從該戶型的原始平面結構圖來看,該戶型擁有5個衛生間,各個房間的采光通風順暢,盡顯大宅之尊貴的氣度。不過仔細分析的話,也存在如下幾個方面的不足

-是入戶門廳處的兩側墻體不齊整,給人一種堵的感覺;二是客廳電視墻面有一門洞口,造成客廳主墻面不夠完整;三是主臥室衛生間的門位置不合理,較大的衛生間布局受限;四是儲物間格局凌亂;五是陽臺呈現L型,利用率偏低;六是廚房布局不夠合理,中廚和西廚之間的配合取舍需要調整;七是該臥室進出距離較長且室內空間偏?。喊耸且旅遍g門不盡合理,造成空間部分浪費:九是生活陽臺偏大,不夠規整。
樓盤地址:洛陽市洛龍區 竣工時間:2017-08
英和紫悅府項目位于龍門大道與古城路交匯處東800米,交通便捷。屬于洛陽新區核心地塊,毗鄰豐沛城市資源,與3000畝隋唐城遺址植物園隔路相望,融匯城市繁華與優質生態。該項目總占地120畝,總建筑面積16萬平方,由30棟聯排/雙拼別墅、6棟花園洋房、3棟瞰景高層大平層構成。項目采用經典意大利建筑風格,特引進埃及西奈珍珠貝等進口石材鑲嵌打造,產品創新能力注入每個細節;遵循望族重視的居家儀式感,以水景、成樹、綠植打造五重立體園林景觀體系,戶戶推窗見景。秉承"以人為本,留鑒洛陽"的理念,力創低密度住區。 其300平方戶型屬于大平層結構,天恒裝飾設計研發中心近期對該戶型進行了詳細的戶型分析。

天恒裝飾原始平面圖
從該戶型的原始平面結構圖來看,該戶型擁有5個衛生間,各個房間的采光通風順暢,盡顯大宅之尊貴的氣度。不過仔細分析的話,也存在如下幾個方面的不足

-是入戶門廳處的兩側墻體不齊整,給人一種堵的感覺;二是客廳電視墻面有一門洞口,造成客廳主墻面不夠完整;三是主臥室衛生間的門位置不合理,較大的衛生間布局受限;四是儲物間格局凌亂;五是陽臺呈現L型,利用率偏低;六是廚房布局不夠合理,中廚和西廚之間的配合取舍需要調整;七是該臥室進出距離較長且室內空間偏?。喊耸且旅遍g門不盡合理,造成空間部分浪費:九是生活陽臺偏大,不夠規整。
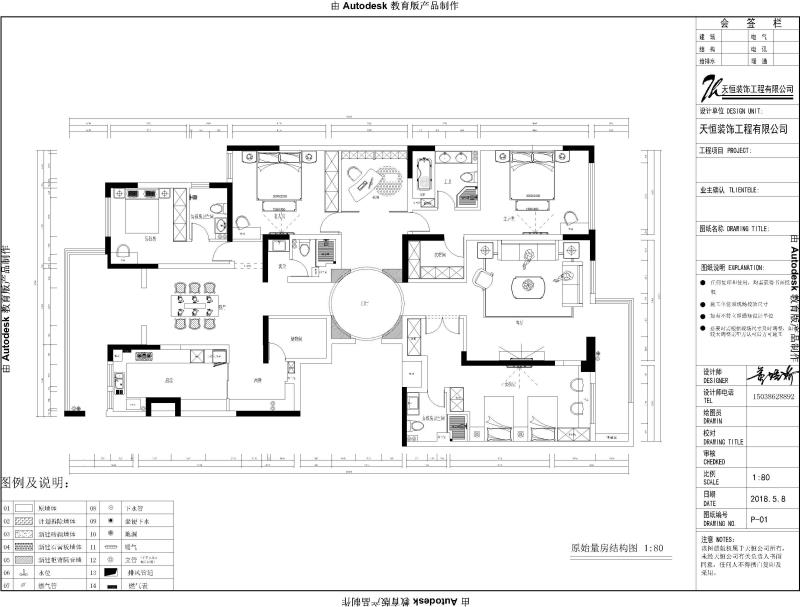
針對上述問題,天恒裝飾設計團隊將空間布局做了如下的優化和調整,大宅大設計的理念得到了進步的提升。當然,這樣的優化布局僅是其中的一種構思,根據不同客戶的不同需求,更加有針對性的設計還是需要量身定制,因人而異的。該戶型比較適合的裝修風格歐式、中式、新中式、美式、法式、混搭等以下是參考家例效果圖:








QQ咨詢
在線咨詢

